技术专题
离心式除砂除泥一体机
				    2月 
          27 
          2024 
		
			
	
				
		
				
	
	
			离心式除砂除泥一体机是一种高效的固液分离设备,主要用于去除钻井液中的砂粒和泥质等固体颗粒。它是一种特殊设计的大转鼓离心机,该设备通过旋转件总成的转鼓和螺旋推料器等部件,将钻井液中的固体颗粒在离心力作用下分离出来,并通过出砂口和排泥口排出。离心式除砂除泥一体机具有分离粒度范围广、处理量大、结构紧凑、操作简便等优点。可以更高效的替代旋流式除砂除泥一体机,分离效率更高,回收钻井液质量更好。离心式除砂除泥一体机在石油钻井等领域具有广泛的应用前景,能够有效地提高钻井液固相控制质量和钻井效率,降低钻井成本。


离心式除砂除泥一体机技术参数
| 型号 | GNLW632A | GNLW632A-VFD | 
|---|---|---|
| 驱动方式 | 工频 | 变频调速 | 
| 转鼓直径 | 630 mm (24.8 Inch) | 630 mm (24.8 Inch) | 
| 转鼓长度 | 1260 mm(49.6 Inch) | 1260 mm(49.6 Inch) | 
| 最大转速(分离因素) | 1800 rpm(1142G) | 1800rpm(1142 G) | 
| 常规转速(分离因素) | 1600rpm(902G) | 0-1600rpm(902) | 
| 最大处理量 | 80 m3/h | 80 m3/h | 
| 常规处理量 | 60 m3/h | 60 m3/h | 
| 主电机功率 | 55 KW | 55 KW | 
| 副电机功率 | 15 KW | 15 KW | 
| 备注 | ?以上参数仅供参考,最终以技术协议为准 | |
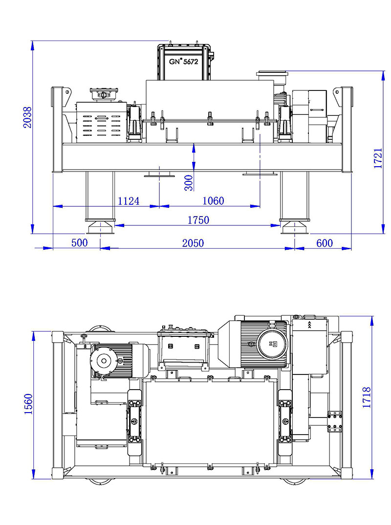
离心式除砂除泥一体机外形尺寸







